Apartament 3 camere| 52 mp | zona Ampoi III
ID: P649 Alba Iulia, Central
141
104.000€



Camere
3
Suprafata utila
52 mp
Etaj
Etaj 3
Bai
1
Parcari
1
An constructie
2025
Descriere
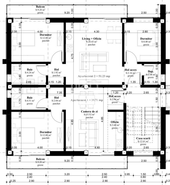
Apartament nou cu 3 camere, 52 mp – Zona Ampoi III!
PRIME Imobiliare vă propune spre vânzare un apartament spațios de 52 mp, situat într-una dintre cele mai apreciate zone din Centru.. Proprietatea este ideal compartimentată și oferă confortul necesar unei familii moderne.
🔹 Compartimentare:
• 3 camere luminoase
• baie
• Bucătărie generoasă
• Hol cu spații de depozitare
🔹 Caracteristici și îmbunătățiri:
• Apartament cu încălzire in pardoseala
• finisaje premium
• Izolație exterioară pentru eficiență termică sporită
• structura de cărămidă
• clădire cu lift si parcare proprie
🔹 Alte avantaje:
• Loc de parcare inclus
• Zonă liniștită, aproape de școli, magazine, mijloace de transport și alte facilități
Acest apartament reprezintă o oportunitate excelentă pentru cei care își doresc un cămin modern, spațios și bine amplasat.
Va așteptam la vizionare!
ID- P649
Citeste mai mult
PRIME Imobiliare vă propune spre vânzare un apartament spațios de 52 mp, situat într-una dintre cele mai apreciate zone din Centru.. Proprietatea este ideal compartimentată și oferă confortul necesar unei familii moderne.
🔹 Compartimentare:
• 3 camere luminoase
• baie
• Bucătărie generoasă
• Hol cu spații de depozitare
🔹 Caracteristici și îmbunătățiri:
• Apartament cu încălzire in pardoseala
• finisaje premium
• Izolație exterioară pentru eficiență termică sporită
• structura de cărămidă
• clădire cu lift si parcare proprie
🔹 Alte avantaje:
• Loc de parcare inclus
• Zonă liniștită, aproape de școli, magazine, mijloace de transport și alte facilități
Acest apartament reprezintă o oportunitate excelentă pentru cei care își doresc un cămin modern, spațios și bine amplasat.
Va așteptam la vizionare!
ID- P649
Caracteristici
- ID:P649
- Nr. camere:3
- Nr. dormitoare:2
- S. utila:52.00 mp
- S. balcoane:10.00 mp
- Comp.:Decomandat
- Confort:1
- Etaj:Etaj 3
- Nr. bucatarii:1
- Nr. bai:1
- Nr. balcoane:1
- Nr. parcari:1
- An constructie:2025
- Structura:Caramida
- Tip imobil:Bloc
- Regim inaltime:P+3
- Orientare:Sud-Est
- Risc seismic:Clasa I
- Clasa energetica:A
Specificatii
Curent
Apa
Canalizare
Gaz
CATV
Telefon
Acces internet
Fibra optica
Centrala proprie
Incalzire pardoseala
Aer conditionat
Izolatie Exterior
Vopsea lavabila
Faianta
Parchet
Gresie
Ferestre Termopan
Usa intrare Metal
Usa interior Celulare
Bucatarie Nemobilata
Apometre
Contor gaz
Nemobilat
Interfon
Lift
Curte comuna
Localizare
Esti interesat de aceasta proprietate ?
Completeaza datele tale și te vom suna noi!